Fermina Bautista Clet

49-19 169th Street , Fresh Meadows, NY 11365

New
View Full Photo Gallery

Property Description

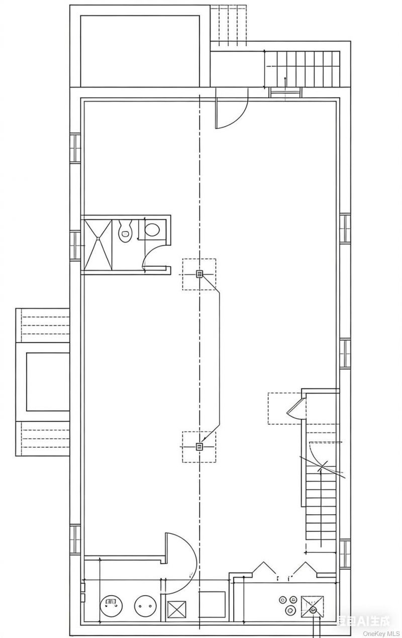
Prime development opportunity in an excellent school district of Flushing. Approved building plans are already in place, allowing the buyer to commence construction immediately in accordance with the approved design. ACP-5 has been completed, saving both time and approval costs. Ideal for owner occupancy with rental income potential.Per the approved plans, the interior will be approximately 1,456 sq ft, with space planned for a basement, first floor, second floor, and attic. Perfect for constructing a spacious and comfortable custom home.The neighborhood is quiet and well-established, with convenient amenities nearby, including schools, shopping, and transportation-an ideal choice for building a custom residence or investment development.

49-19 169th Street | MLS# 975754

This land located at 49-19 169th Street , Fresh Meadows, NY 11365 is currently listed for sale with an asking price of $1,198,000. The property has approximately 0.09 Acres. 49-19 169th Street is located within the Queens 26 school district. Search Fresh Meadows real estate on precy-clet.coldwellbankerprime.com today.

Gallery

Property Features

Property Type: Land - Lot/Land
Lot Size: 0.09 Acres
Taxes: $5,375

Feature Descriptions

Current Use: Vacant
Days on Site: 2
On Market Date: 2026-03-24
Parcel Number: 05573-0030
Rental Term: Monthly
Sewer: Other

Local Schools

High School: Bayside High School
Middle School: Bayside High School
Elementary School: James J Ambrose School
School District: Queens 26

Estimate Your Payment

Estimated Payment

$ 3,463.56 per month $2,666.23 Principal & Interest $447.92 Property Tax $349.42 Homeowner's Insurance

Change Payment Information

%
years/fixed
yearly
yearly (est.)
(Payments are an estimate and may vary by lender)

Demographics

Listed By / Shown By

Listing By

Agency Name: Winzone Realty Inc
Agency Phone: 718-899-7000

Shown By

Agent Name: Fermina Bautista Clet
Agent Phone: (518) 775-8446 Cell
Agency Title: Coldwell Banker Prime Properties

IDX logo

Login to My Homefinder

Pixel